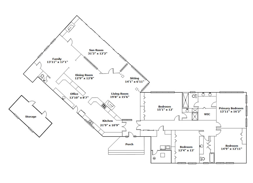
Click an icon on the floor plan below. Once opened you can drag the corresponding content to your prefered location!
Photo Icon -
Information Icon - 
Photo Icon -


















































Presented By

Property Details
Main Level
3860
Storage
200
4
Beds
3 / 1
